O projektu
Výstavba multifunkčního domu v ulici Krasíkovická byla zahájena v srpnu 2015.
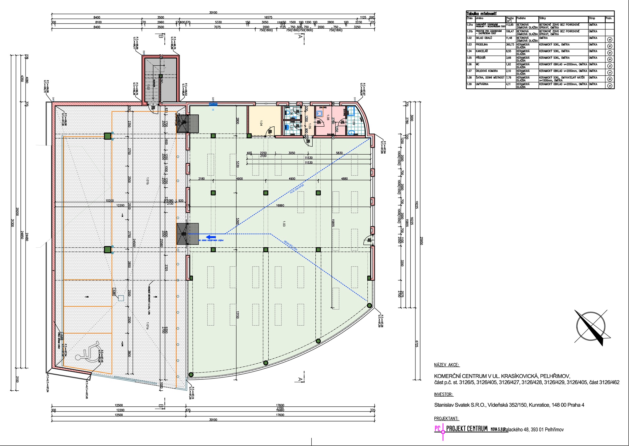
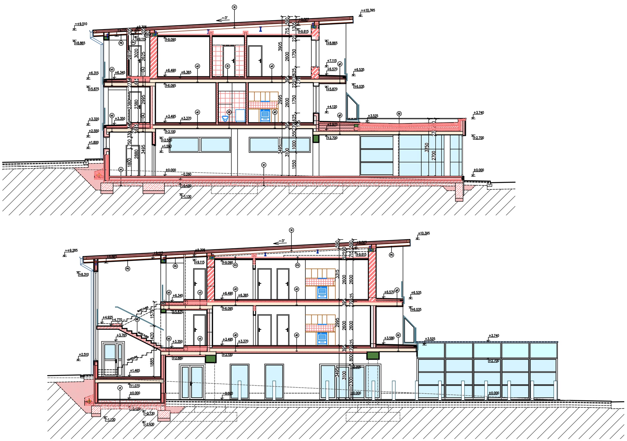
V přízemí domu byly vybudovány nebytové prostory s částečně krytým parkovištěm. V dalších dvou podlažích domu vzniklo 9 malometrážních bytů a 2 byty střední velikosti. Vstup do bytů a příjezd k bytům je oddělen od nebytových prostor v přízemí.
Všechny byty mají velkou lodgii u hlavních obytných místností orientovanou na jih s nádherným výhledem na město a Křemešník.
Vytápění a ohřev TUV je zabezpečen plynovými kotli pro každý byt samostatně, včetně prostorové a časové regulace teploty. Toto řešení je velice ekonomické.
Před vchodem do bytů byla vybudována parkovací místa k prodeji do osobního vlastnictví.
Výstavba byla dokončena v září 2016 a projekt byl prodejem bytů ukončen.
9 malometrážních bytů
2 byty střední velikosti
Nebytové prostory
Parkovací místa a garáže
